Gemengenhaus Wanseler
Previous
Pause
Next
1
/
1
Perspektiv vum Gemengenhaus mat der Erweiderung
Usiicht vun Norden
Usiicht vun Osten
Usiicht vun Süden
Virum Ëmbau
Nom Ëmbau
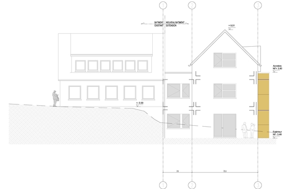
Usiicht Neibau
Trapenhaus bannen
Gemeng Wanseler
Faerdeg gestallt 2011
Aktuelles
Info
Team
Kontakt
Urbanismus
Environnement
Raumplanung - Étuden
Freiraumplanung
Architektur
Cabinet médical Tréier
Daachausbau Tréier
Entrée Privathaus Tréier
Gemengenhaus Wanseler
Kierch zu Donkéls
Kierch zu Näertrech
Morgue Donkéls
Pompjesbau Donkéls
Urbanistesch Concoursen